Übersicht
Machen Sie einen Screenshot eines Plans, fügen Sie Anmerkungen hinzu und hängen Sie ihn an eine Ticket an - ideal für Notizen oder visuelle Darstellungen, die nur für ein bestimmtes Thema relevant sind.
Für eine breitere Zusammenarbeit oder für persönliche Notizen verwenden Sie Planmarkups, um Informationen direkt auf Ihren Projektplänen visuell hervorzuheben und zu kommentieren. Lesen Sie mehr unter Planmarkups erstellen & verwalten.
Zugang & Berechtigungen
Sie benötigen einen In-House Benutzer mit einer Rollenberechtigung zum Erstellen oder Bearbeiten von Tickets und der Benutzerberechtigung 'Tickets & Projektberichte'. Lesen Sie mehr unter Berechtigungen.
Auftragnehmer sehen nur zugewiesene Tickets und haben immer die Berechtigung, Plananmerkungen zu diesen hinzuzufügen. Lesen Sie mehr unter Benutzertypen.
Plan-Anmerkungen hinzufügen
Fahren Sie hier fort, nachdem Sie ein Ticket erstellen oder ein Ticket ansehen & bearbeiten.
Um eine Plananmerkung hinzuzufügen:
- Scrollen Sie nach unten zu Planposition und tippen Sie auf die Planvorschau.
- Tippen Sie auf das Kamera Symbol.
- Verwenden Sie Verschieben und Zoomen, um den entsprechenden Ausschnitt des Plans zu definieren.
- Tippen Sie auf ✔, um den Bereich für den Screenshot zu bestätigen.
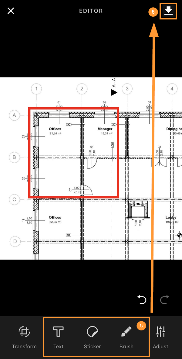
- Fügen Sie Ihre Anmerkungen wie unter Foto Editor beschrieben hinzu.
- Hängen Sie das Bild mit der Plananmerkung an das Ticket und schließen Sie den Fotoeditor.
- Das Bild mit Ihren Anmerkungen wird an das Ticket angehängt.
- Scrollen Sie nach unten zu Formularfelder und tippen Sie auf die Planvorschau
- Tippen Sie auf +, um das Untermenü zu öffnen.
- Tippen Sie auf Plananmerkung hinzufügen
- Verwenden Sie Verschieben und Zoomen, um den entsprechenden Ausschnitt des Plans zu definieren.
- Tippen Sie auf OK, um den Bereich für den Screenshot zu bestätigen.
- Fügen Sie Ihre Anmerkungen wie unter Foto Editor beschrieben hinzu.
- Hängen Sie das Bild mit der Plananmerkung an das Ticket und schließen Sie den Fotoeditor.
- Das Bild mit Ihren Anmerkungen ist an das Ticket angehängt.
Wie bei allen Anhängen in PlanRadar können Plananmerkungen nicht mehr bearbeitet werden, nachdem sie an ein Ticket angehängt wurden, um eine Manipulation der Dokumentation zu verhindern.
Kommentare
0 Kommentare
Bitte melden Sie sich an, um einen Kommentar zu hinterlassen.