Übersicht
Es kann notwendig sein, die Ebene eines Tickets zu ändern, wenn das Ticket auf der falschen Ebene erstellt wurde.
Zugang & Berechtigungen
Sie benötigen einen In-House Benutzer mit einer Rollenberechtigung zum Erstellen oder Bearbeiten von Tickets und der Benutzerberechtigung 'Tickets & Projektberichte'. Lesen Sie mehr unter Berechtigungen.
Ebene ändern
Wenn Sie die Ebene ändern, wird die Planposition des Tickets entfernt. Lesen Sie mehr unter Planposition eines Tickets festlegen, ändern oder löschen.
Um die Ebene eines Tickets zu ändern:
- Öffnen Sie das Ticket
- Wählen Sie in der Dropdown-Liste Ebene eine andere Ebene aus.
- Klicken Sie auf Speichern oder Speichern und schließen
- Öffnen Sie das Ticket
- Tippen Sie auf Planposition hinzufügen ODER auf die Vorschau der Planposition, wenn bereits eine eingestellt ist.
- Tippen Sie auf Ebene ändern
- Tippen Sie auf Ebene ändern , um die Aktion zu bestätigen. (die Planposition geht nach der Änderung verloren)
- Wählen Sie die Ebene, auf die Sie das Ticket verschieben möchten.
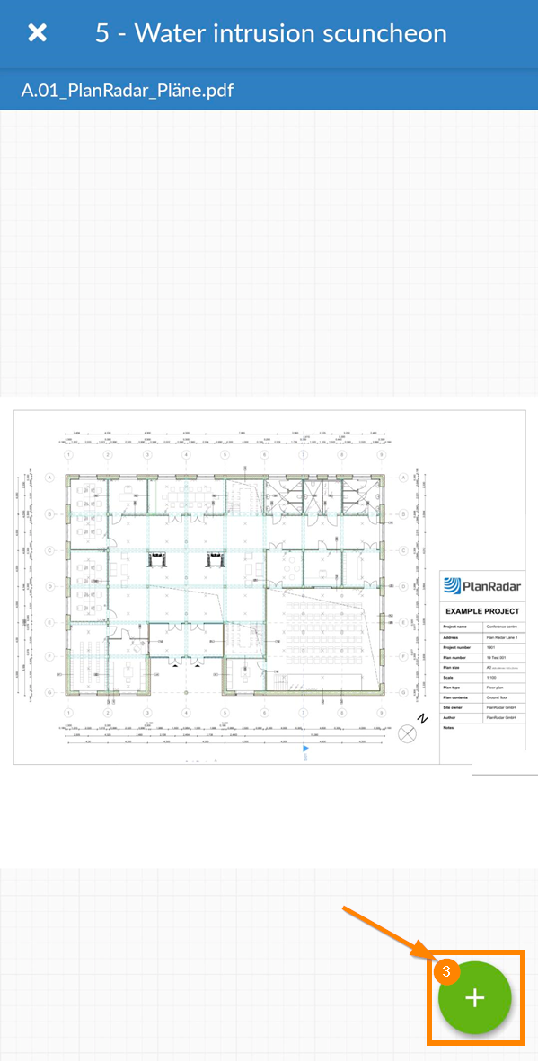
- Öffnen Sie das Ticket
- Tippen Sie auf Planposition hinzufügen ODER auf die Vorschau der Planposition, wenn bereits eine eingestellt ist.
- Tippen Sie auf das + Symbol
- Tippen Sie auf Ebene ändern
- Wählen Sie die Ebene, auf die Sie das Ticket verschieben möchten
- Tippen Sie auf Speichern
Es ist nicht möglich, die Ebene zu entfernen, da sich jedes Ticket auf einer Ebene befinden muss. Lesen Sie mehr unter Tickets.
Kommentare
0 Kommentare
Bitte melden Sie sich an, um einen Kommentar zu hinterlassen.