Visión general
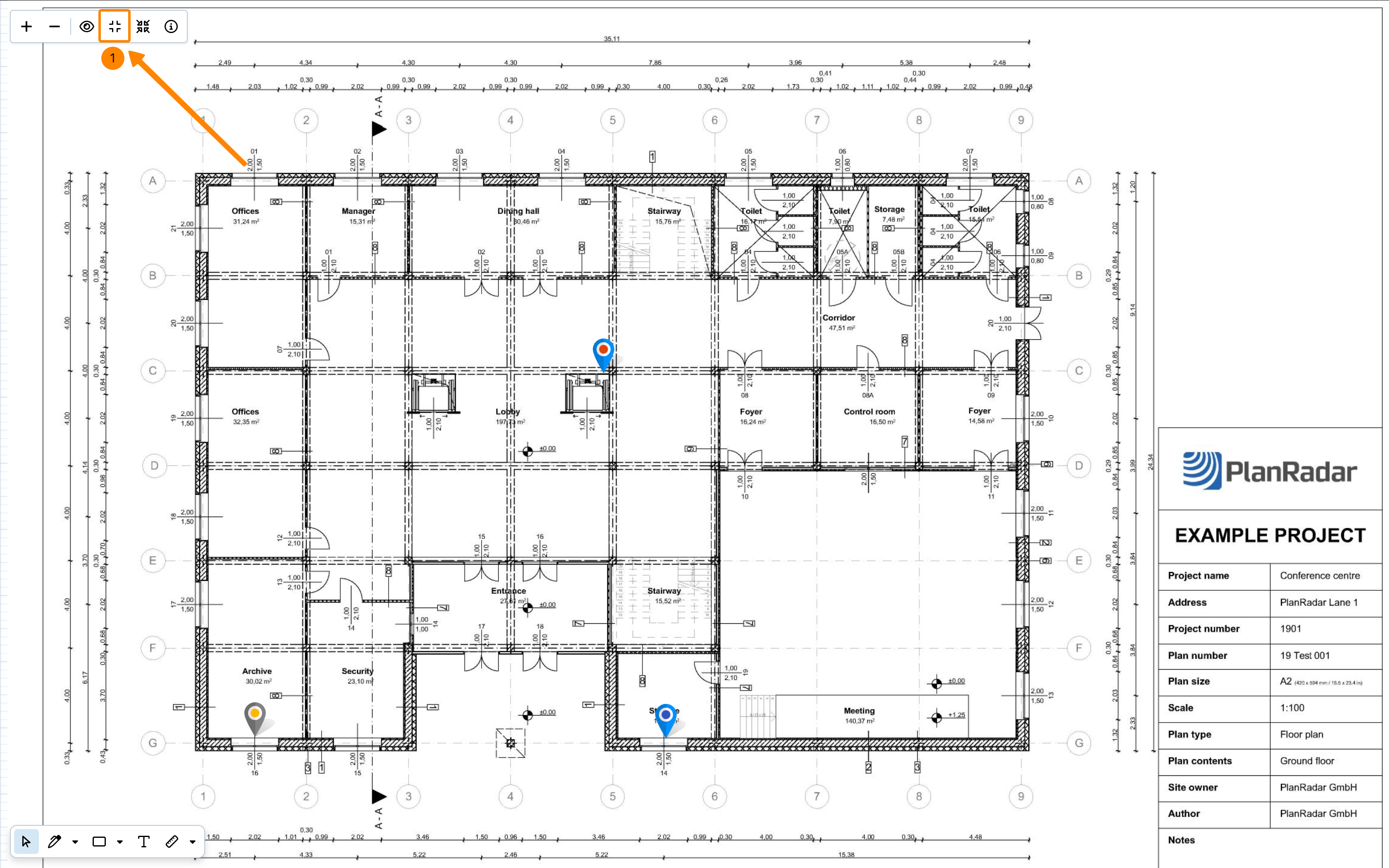
Utilice la vista del plano de entradas para ver dónde están situadas las entradas en el plano.
Lea también sobre Planes y Entradas.
Acceso y permisos
Necesita un usuario interno con el permiso de usuario 'Tickets e informes de proyecto'. Lea más en Permisos.
Los subcontratistas y observadores siempre tienen acceso. Lea más en Tipos de usuario.
Cómo acceder a la vista en planta de las entradas
- Haga clic en Entradas
- Abra el menú Project
-
Haga clic en una capa, por ejemplo Planta baja
La vista en planta no está disponible mientras Todas las capas esté seleccionada.
- Abra el menú desplegable Ver
- Haga clic en Plan
- Verá la vista en planta Tickets
Más información sobre la barra Tickets Toolbar, que comparten la vista de plano, la vista de lista y la vista de calendario.
- Pulse Entradas en el menú principal
- Seleccione una capa, por ejemplo: Planta baja
La vista en planta no está disponible mientras Todas las capas esté seleccionada. - Plan Tap
Vista en planta de las entradas
En la barra de herramientas se selecciona el proyecto, la capa, el formulario y el filtro para definir qué tickets se muestran en la vista del plan de tickets.
Lea más en Ver entradas de un proyecto, capa o formulario en la Webapp.
Si su capa activa tiene un modelo BIM en lugar de un plano 2D, la vista en planta será sustituida por el visor BIM.
Más información en BIM Viewer.
Mostrar/Ocultar lista de entradas
La lista de tickets se muestra por defecto. Para ocultarla:
- Pulse el botón Flecha
Para mostrar la lista de entradas:
- Pulse el botón Flecha
La selección de una capa funciona igual en la vista en planta y en la vista en lista.
Más información en Ver entradas de una capa en la aplicación móvil
Si su capa activa tiene un modelo BIM en lugar de un plano 2D, la vista en planta será sustituida por el visor BIM.
Más información en BIM Viewer.
Abrir una entrada
Abra un ticket para ver sus detalles o editarlo:
- Haga clic en el ticket en la lista de tickets para mostrar automáticamente el pin del ticket en el plano y abrir la vista previa del ticket.
- O haga clic en el pin del ticket en el plano para abrir la vista previa del ticket.
- Haga clic en Abrir para ver todos los detalles del billete.
Consulte también Quick Edit Tickets in Plan View in the Webapp.
- Pulse sobre un pin del billete
- Pulse sobre el ID / título del billete
Más información en Ver y editar un ticket.
Navegar por el Plan
Panorámica
Para desplazar la parte visualizada del plano:
- Utilice arrastrar y soltar
- Utilice el arrastre con un dedo
Zoom
Hay diferentes formas de acercar y alejar el plano:
- Utilice la rueda del ratón en cualquier lugar del plano
- O Haga clic en los botones + o -
- O Haga clic en el botón Ampliar el plano para ajustarlo a la pantalla para ver todo el plano a la vez:
Modo de pantalla completa
Para abrir el plano en pantalla completa en la Webapp:
- Haga clic en Pantalla completa botón
Para salir de la pantalla completa:
- Haga clic en Alternar el modo de pantalla completa botón
- O pulse Esc en su teclado
- Pellizque con dos dedos para ampliar
- Separe dos dedos para alejar
- Pulse la lupa para alejar la imagen hasta que se vea todo el plano
- En iOS: Pulse el botón pin para ampliar el pin del billete seleccionado
Versiones del plan
Es posible cargar nuevas versiones de un plan. La última versión aparece siempre como la versión actual .
Si una capa sólo tiene una versión del plan, el botón de versión del plan estará desactivado.
Para ver todas las versiones de un plan:
- Pulse el botón Mostrar detalles y opciones
- Haga clic en Ver versiones
- Seleccione una versión del plan en el desplegable.
-
Opcional: Seleccione la casilla Mostrar Tickets para mostrar los pivotes Tickets en el plano.
- Toque Versiones del plan
- Pulse sobre la versión del plano, por ejemplo Ground_Floor.pdf
-
Opcional: Pulse el botón pin para mostrar/ocultar los pines de las entradas
- Toque Versiones del plan
- Pulse sobre la versión del plano, por ejemplo: Ground_Floor.pdf
-
Opcional: Pulse el botón pin para ocultar/mostrar Tickets pins
Puede Crear, revisar y gestionar solicitudes de aprobación de planes en Gestión de documentos para gestionar la actualización de nuevas versiones de planes.
Comparar versiones de planes
Compare las versiones del plan para destacar las diferencias entre ellas.
Más información en Ver y comparar versiones de planes.
Descargar Plan
Descargue un plano en formato PDF con o sin chinchetas.
Más información en Plan de descarga con alfileres de billetes.
Comentarios
0 comentarios
Inicie sesión para dejar un comentario.