Vue d'ensemble
Faites une capture d'écran d'un plan, ajoutez des annotations et joignez-la à un site Tâches - idéal pour les notes ou les éléments visuels relatifs à une seule question.
Pour une collaboration plus large ou une référence personnelle, utilisez les marques de plan pour mettre en évidence et annoter directement vos plans de projet. Pour en savoir plus, consultez Créer et gérer des marques de plan.
Accès et autorisations
Vous avez besoin d'un utilisateur interne avec un rôle lui permettant de créer ou d'éditer des tickets et le droit d'utilisateur 'Tickets & Project Reports'. Pour en savoir plus, consultez Permissions.
Les sous-traitants ne voient que les tickets qui leur sont attribués et ont toujours le droit d'y ajouter des annotations de plan. Pour en savoir plus, consultez Types d'utilisateurs.
Ajouter des annotations au plan
Continuez ici après avoir créé un ticket ou vu et modifié un ticket.
Pour ajouter une annotation au plan :
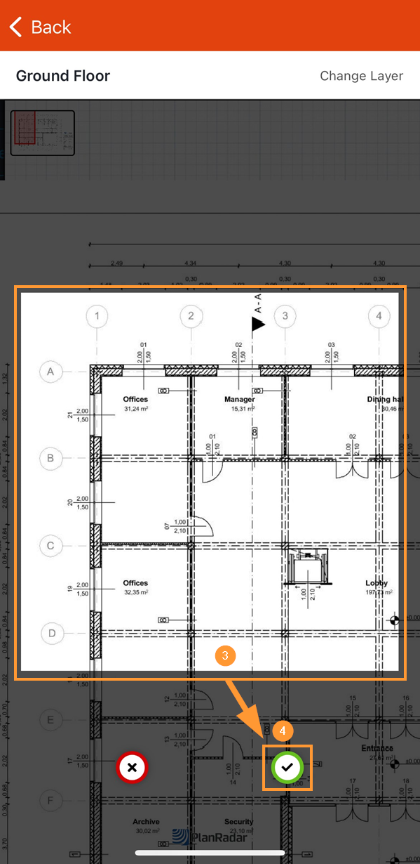
- Faites défiler vers le bas jusqu'à Position du plan et appuyez sur l'aperçu du plan.
- Appuyez sur l'icône de l'appareil photo .
- Utilisez les fonctions de panoramique et de zoom pour définir la section pertinente du plan.
- Appuyez sur ✔ pour confirmer la zone de la capture d'écran.
- Ajoutez vos annotations comme décrit dans Photo Editor.
- Attachez l'image de l'annotation du plan au site Tâches et fermez l'éditeur de photos.
- L'image avec vos annotations est jointe au site Tâches .
- Faites défiler vers le bas jusqu'à Form fields et appuyez sur l'aperçu du plan
- Appuyez sur + pour ouvrir le sous-menu.
- Tapez sur Ajouter une annotation au plan
- Utilisez les fonctions de panoramique et de zoom pour définir la section pertinente du plan.
- Appuyez sur OK pour confirmer la zone de la capture d'écran.
- Ajoutez vos annotations comme décrit dans Photo Editor.
- Attachez l'image de l'annotation du plan au site Tâches et fermez l'éditeur de photos.
- L'image avec vos annotations est jointe au site Tâches .
Comme toutes les pièces jointes dans PlanRadar, les annotations de plan ne peuvent pas être modifiées après avoir été jointes à un ticket, afin d'éviter toute manipulation de la documentation.
Commentaires
0 commentaire
Vous devez vous connecter pour laisser un commentaire.