Pregled
Upotrijebite prikaz plana ulaznica da biste vidjeli gdje se ulaznice nalaze na planu.
Također pročitajte o planovima i ulaznicama.
Pristup & Dozvole
Potreban vam je interni korisnik s korisničkim dopuštenjem 'Tickets & Projektna izvješća'. Pročitajte više u Dozvolama.
Podizvođači i promatrači uvijek imaju pristup. Pročitajte više u Vrste korisnika.
Kako pristupiti prikazu plana ulaznica
- Kliknite Ulaznice
- Otvorite izbornik Projekt
-
Kliknite na sloj, npr. Prizemlje
Prikaz tlocrta nije dostupan dok je odabrana opcija Svi slojevi.
- Otvorite padajući izbornik Prikaz
- Kliknite Plan
- Vidite ticketi tlocrt
Pročitajte više o Alatnoj traci ulaznica, koju dijele prikaz plana, prikaz popisa i prikaz kalendara.
- Dodirnite Ulaznice u glavnom izborniku
- Odaberite sloj, npr. Prizemlje
Prikaz tlocrta nije dostupan dok je odabrana opcija Svi slojevi. - Dodirnite Plan
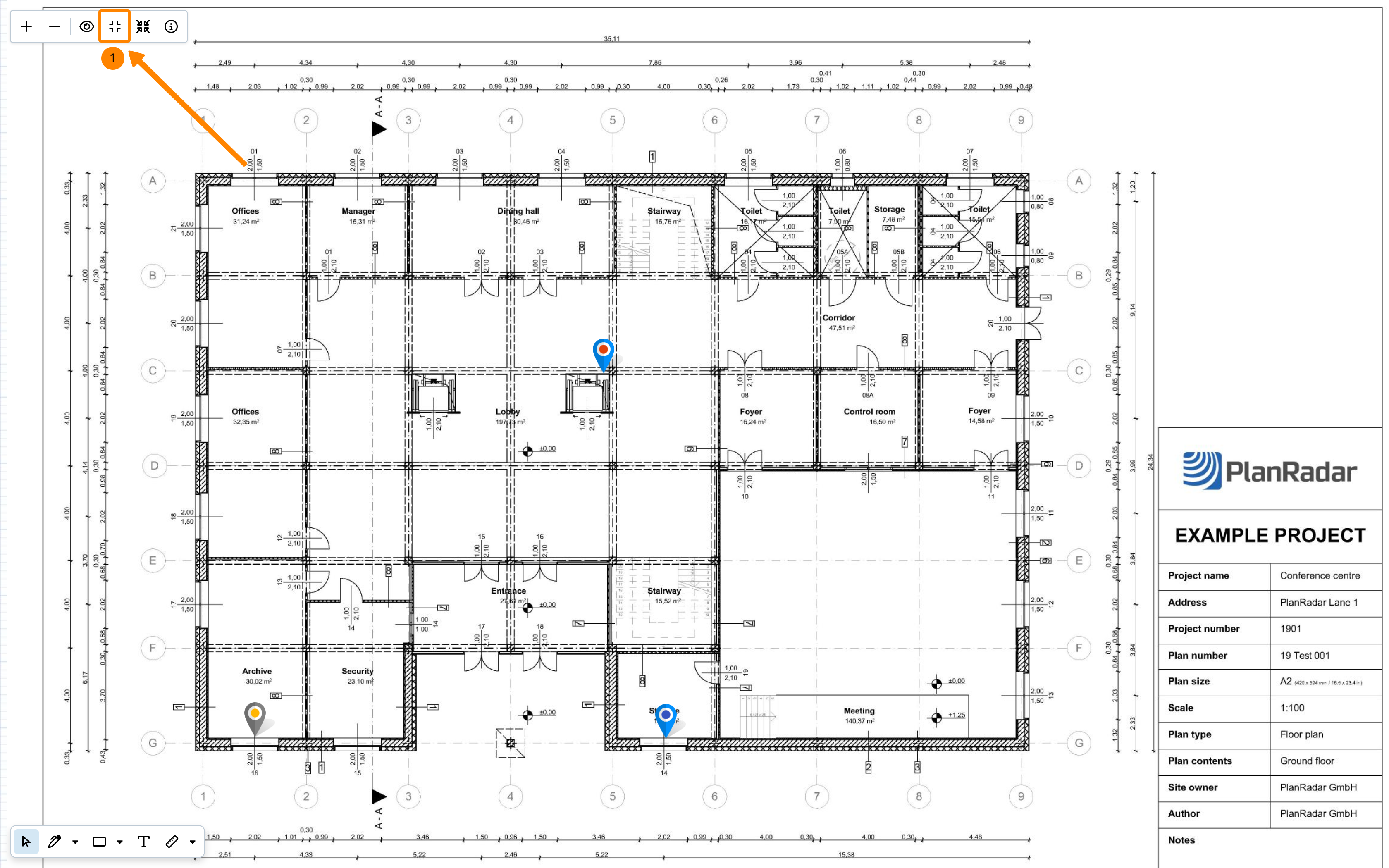
Prikaz plana ulaznica
Na alatnoj traci odabirete projekt, sloj, obrazac i filtar kako biste definirali koje se karte prikazuju u prikazu plana ulaznica.
Pročitajte više u odjeljku Prikaz ulaznica za projekt, sloj ili obrazac u web aplikaciji.
Ako vaš aktivni sloj ima BIM model umjesto 2D plana, tada se tlocrtni prikaz zamjenjuje BIM preglednikom.
Pročitajte više u BIM pregledniku.
Prikaži/sakrij popis ulaznica
Popis ulaznica prikazan je prema zadanim postavkama. Da biste to sakrili:
- Kliknite gumb Strelica
Za prikaz popisa karata:
- Kliknite gumb Strelica
Odabir sloja radi isto za prikaz plana i prikaz popisa.
Pročitajte više u odjeljku Prikaz ulaznica za sloj u mobilnoj aplikaciji
Ako vaš aktivni sloj ima BIM model umjesto 2D plana, tada se tlocrtni prikaz zamjenjuje BIM preglednikom.
Pročitajte više u BIM pregledniku.
Otvorite ulaznicu
Otvorite kartu kako biste vidjeli njezine detalje ili je uredili:
- Kliknite na kartu na popisu karata za automatski prikaz igle karte na planu i otvaranje pregleda karte.
- ILI kliknite na značku karte na planu da biste otvorili pregled karte .
- Kliknite Otvori za pregled svih pojedinosti ulaznice.
Također pogledajte Brzo uređivanje ulaznica u prikazu plana u web aplikaciji.
- Dodirnite značku za ulaznicu
- Dodirnite ID / naslov ulaznice
Pročitajte više u View & Uredite ulaznicu.
Krećite se kroz plan
Pomicanje
Za premještanje prikazanog dijela plana:
- Koristite drag & pad
- Koristite povlačenje jednim prstom
Zumiranje
Postoje različiti načini za povećavanje i smanjivanje plana:
- Koristite svoj kotačić miša bilo gdje na planu
- ILI Kliknite gumbe + ili -
- ILI Kliknite gumb Zumiraj plan kako bi odgovarao zaslonu da biste odjednom vidjeli cijeli plan:
Način rada preko cijelog zaslona
Za otvaranje plana na cijelom zaslonu u web aplikaciji:
- Kliknite gumb Cijeli zaslon
Za izlazak iz cijelog zaslona:
- Kliknite gumb Uključi/isključi način rada preko cijelog zaslona
- ILI pritisnite Esc na tipkovnici
- Skupite dva prsta za povećanje
- Raširite dva prsta za umanjivanje
- Dodirnite povećalo za smanjivanje dok cijeli plan ne bude vidljiv
- Na iOS-u: dodirnite gumb pin da biste povećali odabranu pin ulaznice
Verzije plana
Moguće je učitati nove verzije plana. Najnovija verzija uvijek se prikazuje kao trenutna verzija.
Ako sloj ima samo jednu verziju plana, gumb za verziju plana je onemogućen.
Za prikaz svih verzija plana:
- Kliknite gumb Prikaži detalje i opcije
- Kliknite Prikaži verzije
- Na padajućem izborniku odaberite verziju plana.
-
Neobavezno: Označite potvrdni okvir Prikaži ticketi kako biste prikazali ticketi pinove na planu.
- Dodirnite Verzije plana
- Dodirnite verziju plana, npr. Ground_Floor.pdf
-
Izborno: Dodirnite gumb pin da biste prikazali/sakrili pribadače ulaznica
- Dodirnite Verzije plana
- Dodirnite verziju plana, npr. Ground_Floor.pdf
-
Neobavezno: Dodirnite gumb pribadača za skrivanje/prikazivanje ticketi pribadača
Možete stvoriti, pregledati & Upravljajte zahtjevima za odobrenje plana u Upravljanju dokumentima za upravljanje ažuriranjem novih verzija plana.
Usporedite verzije plana
Usporedite verzije plana kako biste istaknuli razlike između verzija.
Pročitajte više u View & Usporedite verzije plana.
Plan preuzimanja
Preuzmite plan kao PDF datoteku sa ili bez pribadača za karte.
Pročitajte više u Preuzmite plan s pribadačama za ulaznice.
Komentari
0 komentara
Molimo Prijavite se kako bi ostavili komentar.