Visão geral
Baixe qualquer plano como PDF para armazená-lo em seu dispositivo ou compartilhá-lo fora do PlanRadar. Opcionalmente, o senhor pode incluir pinos de tíquetes e definir o tamanho e a legenda (ID ou título do tíquete), bem como os metadados do plano (versão do plano e quando ele foi carregado).
Acesso e permissões
Para fazer download de planos, o senhor precisa de um usuário interno com permissão de função para editar ou visualizar tíquetes e a permissão de usuário "Tickets & Project Reports". Leia mais em Permissões.
Os subcontratados não podem fazer download de planos. Leia mais em Tipos de usuários.
Como acessar a visualização do plano de ingressos
Antes de fazer o download de um plano, o senhor precisa navegar para Tickets Plan View e selecionar o projeto e a camada desejados, conforme descrito em View Tickets of a Project, Layer or Form.
Para acessar a visualização do plano de tíquetes:
- Clique em Tickets
- Selecione Plan no menu suspenso View
Baixar o plano
Ao fazer o download de um plano, o senhor pode incluir opcionalmente o seguinte:
- Tickets pins - escolha o tamanho e a legenda do pin (ID ou título)
- Código QR - leia mais em Verifique a versão mais recente do plano com um código QR
- Metadados - versão do plano e data de upload do plano
Para fazer o download de um plano:
- Clique no botão Show details & options
- Clique em Download
- Ativar/desativar os pinos Include Tickets toggle
- Opcional: Selecione o tamanho da tela do pino: small, medium ou large
- Opcional: Selecione a legenda do pino: Tickets ID ou Tickets Título ou Sequência de numeração
- Ativar/desativar o Include QR code toggle
- Opcional: Escolha o local de impressão: Superior esquerdo, Superior direito, Inferior esquerdo ou Canto inferior direito
- Ativar/desativar a opção Incluir metadados
- Clique em Download
- O PDF é gerado em segundo plano e o senhor recebe uma notificação quando estiver pronto para Download file.
A mensagem também poderá ser acessada no Message Center:
- Clique em Message Center
- Clique em Downloads
- Clique em para fazer o download do arquivo
A mensagem e a possibilidade de baixar o arquivo ficarão disponíveis apenas por 24 horas e serão automaticamente excluídas.
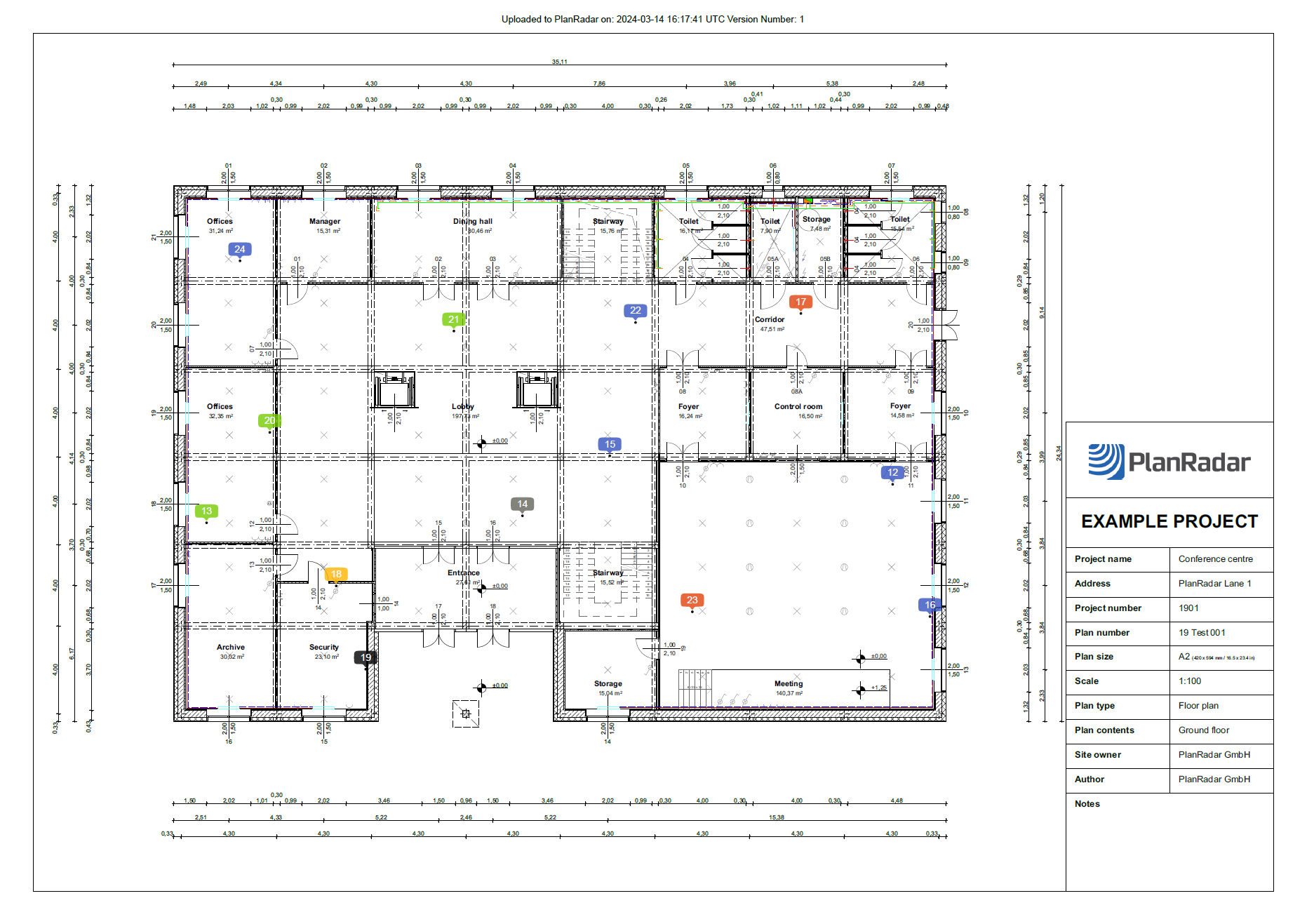
Exemplo de um plano impresso com IDs de tíquetes de tamanho médio, incluindo metadados na parte superior:
Exemplo de um plano impresso com títulos de ingressos de tamanho médio, incluindo metadados na parte superior:
As mesmas opções de planos de download também estão disponíveis ao incluir planos em modelos avançados de relatórios de tíquetes. Leia mais em Create Advanced Ticket Report Templates.
Comentários
0 comentário
Por favor, entre para comentar.